可转位左旋螺旋和右螺旋立铣刀的设计应用
发布日期:2026-03-06
1 可转位左旋螺旋立铣刀
设计背景:
20世纪70年代,可转位螺旋立铣刀是机械部重点攻关项目,太原工具厂先后开发出左旋、右旋可转位螺旋立铣刀多种,很快在全国推广,大大提高了我国机械加工水平,为我国重型刀具填补了空白。
设计加工过程要点:
采用了无孔SPEF120408-H方刀片,刀体设计螺旋沟为左旋,柄部7∶24锥柄。 周齿刀片槽为封闭型,合金带孔刀垫,用螺钉紧固在刀片槽下面,再用带定位柱的蘑菇头螺栓压紧刀片。 合金刀垫、封闭槽设计,定位柱蘑菇头螺钉压紧,增强了刀具承载力和稳固性。 -10°前角设计刀刃耐冲击,适于强力切削。
刀具结构特点:
刀体7上铣左旋螺旋沟,刀片槽顺沟形铣刀片槽,钻铰螺纹孔安装合金刀垫3、端齿刀片1和周齿刀片5,合金刀垫用刀垫螺钉4紧固,刀片用蘑菇头螺栓6压紧在刀垫上,形成-10°前角和10°后角。
使用效果:
刀片为无孔方刀片、合金刀垫承载力大、耐冲击。刀体为左旋沟槽,铁屑顺沟向下集中排出,不飞溅(不适于加工沟槽)。带定位轴蘑菇头状螺钉压紧刀片,压紧力强。刀具适用于重型设备加工大型锻件、铸件的粗加工,加工效率高。
图2.1-1为可转位左旋螺旋立铣刀结构示意图。

1—端齿刀片 2—蘑菇头螺栓 3—合金刀垫 4—刀垫螺钉 5—周齿刀片 —蘑菇头螺栓 7—刀体

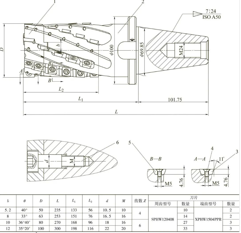
2 可转位右旋螺旋立铣刀
设计背景:
可转位右旋螺旋立铣刀具有端头可换、刀具切削锋利、轻快等优点,普通镗床、铣床都可用。立铣刀具容易损坏的是端齿,可转位右旋螺旋立铣刀带端头刀具解决了这一问题,提高了刀具使用寿命、降低了刀具成本,普通数控铣床即可加工。在刀体材料、热处理、工装工艺上,不断改进提高,刀具使用面和市场需求量不断扩大,为提高机械加工效率做出了贡献。
设计加工过程要点:
可转位右旋螺旋立铣刀有整体式、可换端头两体式。锥柄有7∶24柄、莫氏柄、直柄等,刀片为带孔11°后角(小规格14°)方刀片,顺螺旋沟等距排列。 为了保证刀片压紧牢固,钻铰紧固螺钉孔中心向内偏心0.15~0.3mm,刀体和端头用端面凸键和凹槽定位连接,螺栓紧固,端齿刀片伸出量高0.5mm。
两体式的沟形配合位置θ角,要有专用工装和校对规加工、检测,加工刀体和端头螺旋角、沟槽底部尺寸d等要一致。
刀具结构原理特点:
如图2.2-1所示,刀体2装可换端头1通过定位键和端盖锁紧螺栓6定位锁紧,更换方便。周齿刀片5为SPHW1204标准方刀片,端齿刀片3为XPHW1504刀片,用螺钉4紧固。刀片为带孔方刀片,后角为11°(40以下刀体为14°),切削轻快。刀体为右旋,切削锋利、轻快、排屑好,右旋立铣刀向上排出可加工沟槽。刀具由可换端头和刀体通过螺栓和端面键连接,解决了端齿易损坏的问题,而且更换方便。刀具适用于重型设备加工大型锻件、铸件的粗加工,加工效率高。
图2.2-1为可转位右旋螺旋立铣刀结构示意图。
图2.2-2为刀体、端头接合键和槽θ角度示意图。

1—可换端头 2—刀体 3—端齿刀片 4—螺钉 5—周齿刀片 6—端盖锁紧螺栓

上一篇:钻头选型知识介绍

